Woonoppervlakte
Circa 189 m²
Perceeloppervlakte
Circa 759 m²
Bouwjaar
Gebouwd in 1950
Aantal kamers
4 kamers (3 slaapkamers)

Nesse 11

2771 VW, Boskoop (Zuid-Holland)

Bent u op zoek naar een unieke, vrijstaande woning aan het water met een multifunctioneel bijgebouw? Dan is deze woning aan de Nesse 11 in Boskoop misschien wel uw nieuwe thuis. Met een woonoppervlakte van maar liefst 189 m² en een perceeloppervlakte van 759 m² biedt deze woning niet alleen veel ruimte, maar ook talloze mogelijkheden.

De ligging van dit prachtige huis is eveneens een groot pluspunt. Gelegen aan water, kunt u genieten van rust en natuur om u heen. Daarnaast zijn de uitvalswegen naar diverse steden op enkele autominuten gelegen, wat de woning perfect maakt voor forenzen. U woont hier in een rustige en groene omgeving, terwijl u ook snel in het bruisende leven bent van nabijgelegen steden. De woning is tevens gelegen op loopafstand van de jachthaven.

Indeling:
Begane grond
Bij binnenkomst wordt u verwelkomd in een ruime entree, die toegang biedt tot de diverse vertrekken van dit prachtige huis. De riante woonkamer is het hart van de woning en is voorzien van een gezellige pelletkachel en een houten vloer. De open keuken is van alle gemakken voorzien, met een kookplaat, afzuigkap, combi oven/magnetron, koelkast, vriezer en vaatwasser. Hier kunt u de heerlijkste maaltijden bereiden terwijl u in contact blijft met uw gezin of vrienden in de aangrenzende woonkamer.

Een bijzonder kenmerk van deze woning is de sfeervolle serre, die via de woonkamer bereikbaar is. Deze plek is perfect voor het genieten van een goed boek of een kop koffie met uitzicht op de tuin en het water. De glazen schuifpui biedt de mogelijkheid om de binnen- en buitenruimtes naadloos met elkaar te verbinden, wat de uitnodigende sfeer van het huis verder versterkt.

De indeling van de woning is doordacht en praktisch. Op de begane grond vindt u ook een slaapkamer, die momenteel als werkkamer in gebruik is. Dit geeft u de flexibiliteit om de ruimte aan te passen aan uw eigen behoeften. De luxe badkamer, een waar wellnessparadijs, is uitgerust met een vrijstaand ligbad, een riante inloopdouche en een dubbele wastafel. Dit maakt deze woning ideaal voor zowel gezinnen als voor iedereen die graag wil genieten van een comfortabele levensstijl.

Verdieping
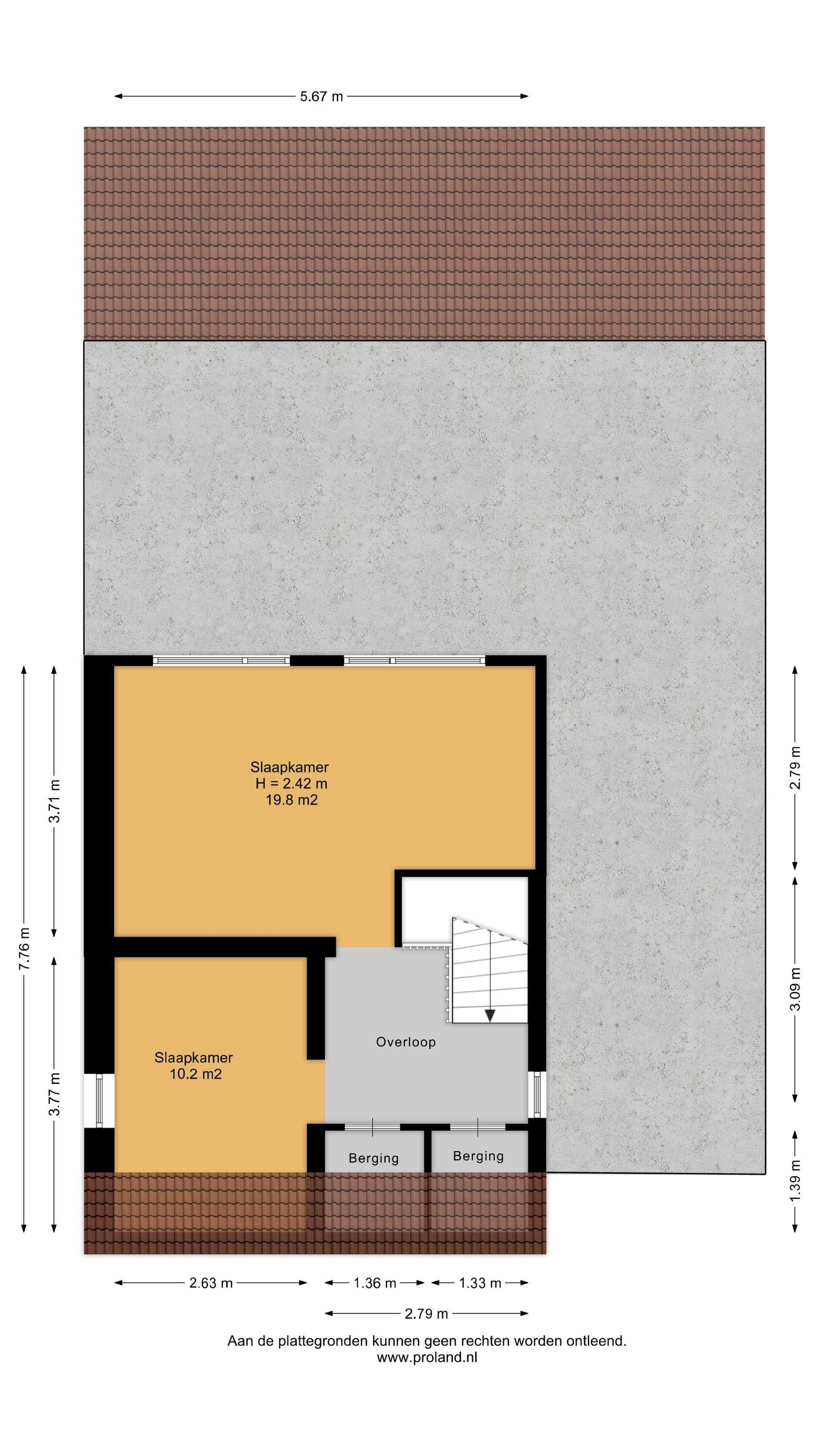
Op de verdieping bevinden zich twee extra slaapkamers, die perfect zijn voor kinderen, gasten of als hobbyruimte. De lichte inrichting en het uitzicht op de groene omgeving zorgen ervoor dat deze ruimtes uitnodigend en comfortabel aanvoelen.

Bijgebouw
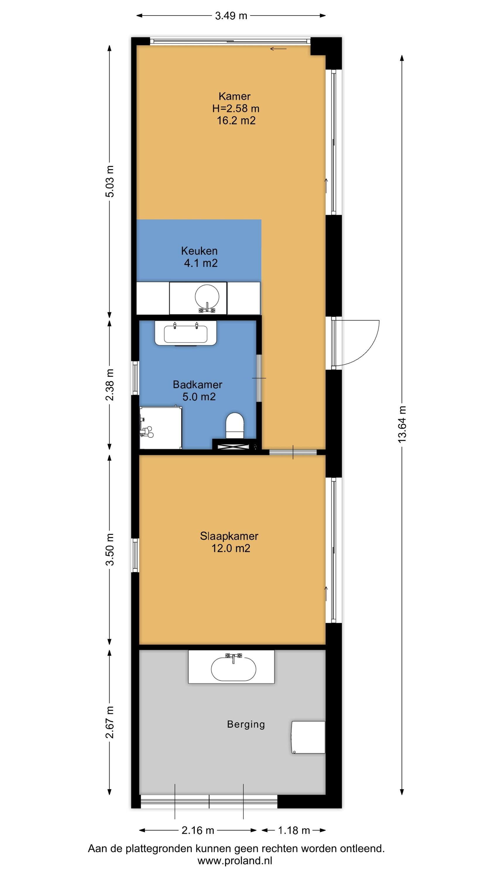
Bijzonder is ook het bijgebouw. Dit appartement is voorzien van een eigen keuken, woonkamer, slaapvertrek en badkamer, en biedt uitstekende mogelijkheden voor gasten.

Buitenruimte
En laten we de buitenruimte niet vergeten! De riante achtertuin is omringd door natuur, waar u heerlijk kunt ontspannen en genieten van de rust en ruimte. Het prachtige uitzicht maakt het plaatje compleet.

Bijzonderheden:
- 24 zonnepanelen en geheel gasloos!
- parkeren op eigen terrein
- geheel voorzien van dubbele beglazing
- heerlijke serre
- multifunctioneel bijgebouw
- heerlijk zonnige achtertuin met weids uitzicht
- 3 slaapkamers

Kortom, Nesse 11 in Boskoop is een vrijstaande woning met alle comfort en mogelijkheden die u zoekt. Kom snel een kijkje nemen en ontdek zelf de charme en de ruimtes die deze woning te bieden heeft. Uw nieuwe thuis wacht op u!

Plattegronden

Overdracht

Koopsom
€ 799.000 k.k.
Status
Verkocht
Aanvaarding
In overleg

Bouw

Object type
Eengezinswoning, vrijstaande woning
Soort bouw
Bestaande bouw
Bouwjaar
1950
Soort dak
Zadeldak

Oppervlakte en inhoud

Woonoppervlakte
189 m²
Perceeloppervlakte
759 m²
Inhoud
691 m³
Gebouwgeb. buitenruimte
24 m²

Indeling

Aantal kamers
4 kamers (3 slaapkamers)
Aantal badkamers
1 badkamer
Badkamervoorzieningen
Ligbad, douche, dubbele wastafel
Aantal woonlagen
2 woonlagen

Energie

Energielabel
A
Energielabel registratie
03-09-2025
Isolatie
Dakisolatie, vloerisolatie, dubbel glas
Verwarming
Vloerverwarming gedeeltelijk, pelletkachel

Buitenruimte

Ligging
Aan water, vrij uitzicht
Tuin
Tuin rondom
ligging tuin
En bereikbaar via achterom

Garage

Soort garage
Geen garage

Energieverbruik in Boskoop

Energielabel deze woning

Energielabel A

Publicatie energielabel: 03-09-2025

Stroomverbruik per jaar

4170 kWh

(Gemiddelde vrijstaande woning in Boskoop)

Gasverbruik per jaar

1910 m³

(Gemiddelde vrijstaande woning in Boskoop)

* Cijfers zijn afkomstig van het CBS en bedoeld als indicatie en kunnen verschillen voor deze woning

Indicatie hypotheeklasten

Eigen inleg:
Spaargeld / overwaarde

Rente:
Laagste 10-jaars rente

Laagste 10-jaars rente

2,78% - Centraal Beheer Groen... - NHG


3,04% - Centraal Beheer Groen... - 80%

Laagste 20-jaars rente

3,29% - Centraal Beheer Groen... - NHG


3,52% - Centraal Beheer Groen... - 80%

Laagste 30-jaars rente

3,41% - Centraal Beheer Groen... - NHG


3,7% - Argenta Groen Hypotheek... - 80%


Hypotheek:

Bruto maandlasten: € 0 p/m

Netto maandlasten: € 0 p/m

Hoe berekenen we dit?

Het rentepercentage is gebaseerd op de laagste 10 jaars vaste rente voor één hypotheekdeel. De vermelde rente (3.04% zonder NHG) is gecontroleerd op 24-02-2026. Deze berekening is gebaseerd op een annuïteitenhypotheek die volledig wordt afgelost, waarbij de maandlasten gedurende de gehele looptijd gelijk blijven. De werkelijke rente en netto maandlasten kunnen variëren, afhankelijk van uw persoonlijke situatie en de hypotheekverstrekker. Raadpleeg een financieel adviseur voor een nauwkeurige berekening en advies. Aan deze berekening kunnen geen rechten worden ontleend; het dient enkel als indicatie.

Documentatie

Kadastrale kaart

Leefomgeving

Plattegronden PDF

WOZ waarderapport

BAG uittreksel

Aanslag-gemeentebelastingen-8

Eigendomsbewijs

Lijst-van-zaken

Bekijk onze website

Zonnegrenzen bekijken

Op de kaart

Inwoners in Boskoop

Cijfers voor postcodegebied 2771

Totaal aantal inwoners
16130 inwoners
Mannen
50%
Vrouwen
50%

Inwoners in Boskoop

Cijfers voor postcodegebied 2771

tot 15 jaar
16%
15 tot 25 jaar
13%
25 tot 35 jaar
24%
45 tot 65 jaar
28%
65 en ouder
20%

Huishoudens in Boskoop

Cijfers voor postcodegebied 2771

Eenpersoons zonder kinderen
33%
Meerpersoons zonder kinderen
32%
Huishoudens zonder kinderen
65%

Huishoudens in Boskoop

Cijfers voor postcodegebied 2771

Huishoudens met één kind
6%
Huishoudens met meerdere kinderen
29%
Huishoudens met kinderen
35%

Woningen in Boskoop

Cijfers voor postcodegebied 2771

Woningen voor 1945
19%
Woningen tussen 1945 en 1965
13%
Woningen tussen 1965 en 1975
20%
Woningen tussen 1975 en 1985
19%
Woningen tussen 1985 en 1995
10%

Woningen in Boskoop

Cijfers voor postcodegebied 2771

Woningen tussen 1995 en 2005
9%
Woningen tussen 2005 en 2015
6%
Woningen na 2015
5%
Huurwoningen
40%
Koopwoningen
60%

Overige in Boskoop

Cijfers voor postcodegebied 2771

Gemiddelde WOZ waarde
€ 263.000,-
Personen onder de 65 met uitkering
5%

Overige in Boskoop

Cijfers voor postcodegebied 2771

Adressen per km²
889
Stedelijkheid (schaal 1 op 5)
40%
Postcode kaart 2771 Gemeente kaart alphen aan den rijn

Indien u vragen heeft of u wilt een bezichtiging inplannen, dan kunt u gebruik maken van het formulier hiernaast. Er zal daarna op korte termijn contact met u worden opgenomen.

Euromarkt 3

2408 BA, Alphen aan den Rijn

0172 - 234 406 info@houtmandevogel.nl www.houtmandevogel.nl

Over Houtman & de Vogel

Bent u van plan om uw woning te verkopen? Zoek niet verder! Bij Houtman & de Vogel profiteert u van ervaren makelaars met uitgebreide kennis van de lokale woningmarkt. Ons doel is om de best mogelijke verkoopprijs en voorwaarden voor onze klanten te realiseren. Benieuwd hoe we dat doen? Maak een afspraak en ontdek wat wij voor u kunnen betekenen.

Ons kantoor is gevestigd op de Euromarkt 3 in Alphen aan den Rijn. Het heeft een professionele uitstraling en is voorzien van opvallende tv-schermen in de etalage waar uw woning wordt gepresenteerd. U kunt ons eenvoudig bereiken en er is gratis parkeergelegenheid voor de deur!

Houtman & de Vogel staat bekend om zijn actieve en resultaatgerichte aanpak, gekenmerkt door een no-nonsense mentaliteit. Wij zijn 6 dagen per week en 16 uur per dag bereikbaar. U kunt bij ons terecht voor bezichtigingen of een (gratis) waardebepaling, niet alleen tijdens kantooruren, maar ook in de avonduren en op zaterdag.

Over Houtman & de Vogel
Reviews Houtman & de Vogel Makelaardij

Nesse 11, Boskoop

€ 799.000 k.k. - Verkocht

Helaas, deze woning is verkocht!

Net te laat, deze woning is al verkocht. Laat een zoekopdracht bij ons achter zodat wij u direct kunnen helpen wanneer er nieuw aanbod beschikbaar komt.